top of page
Property & Leasing Solutions in Toronto & the GTA
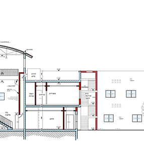
Our Property & Leasing Solutions service provides accurate CAD drawings that help landlords, property managers, and tenants make informed decisions.
From leasing floor plans and tenant fit-outs to test fits and building record updates, we create clear documentation that supports space planning and smooth lease transactions. With CanCAD360, you get precise layouts that streamline approvals, reduce misunderstandings, and keep property projects moving forward.
Ready to get Started?
Tell us about your project and we’ll provide a clear, no-obligation quote tailored to your space and needs.
bottom of page



